| Доставка до терминала ТК: | Бесплатно | |
| Доставка по Москве в пределах МКАД: | Уточняйте | |
| Самовывоз: | Бесплатно |
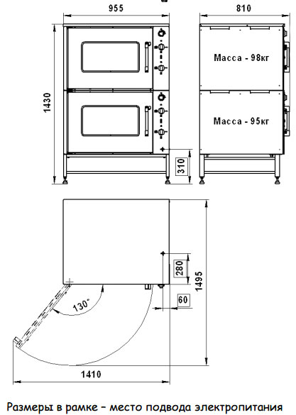
Жарочный шкаф Тулаторгтехника ШЖ-150-2с предназначен для выпечки хлебобулочных и кондитерских изделий и приготовления различных блюд на предприятиях общественного питания и торговли. Каждая секция оснащена 2 нижними и 2 верхними нагревательными элементами. Рабочая и лицевые поверхности выполнены из нержавеющей стали, боковые и задняя - из оцинкованной стали.
В комплект поставки входят 4 противня GN 2/1-20 (650х530х20мм) из черной стали, рама - подставка и 4 регулируемые опоры.
Особенности:
Дополнительные характеристики:
Cтаньте первым, кто оставит отзыв об этом товаре